Evergreen ADU

An Accessible, craftsman-style adu

Location | Anywhere
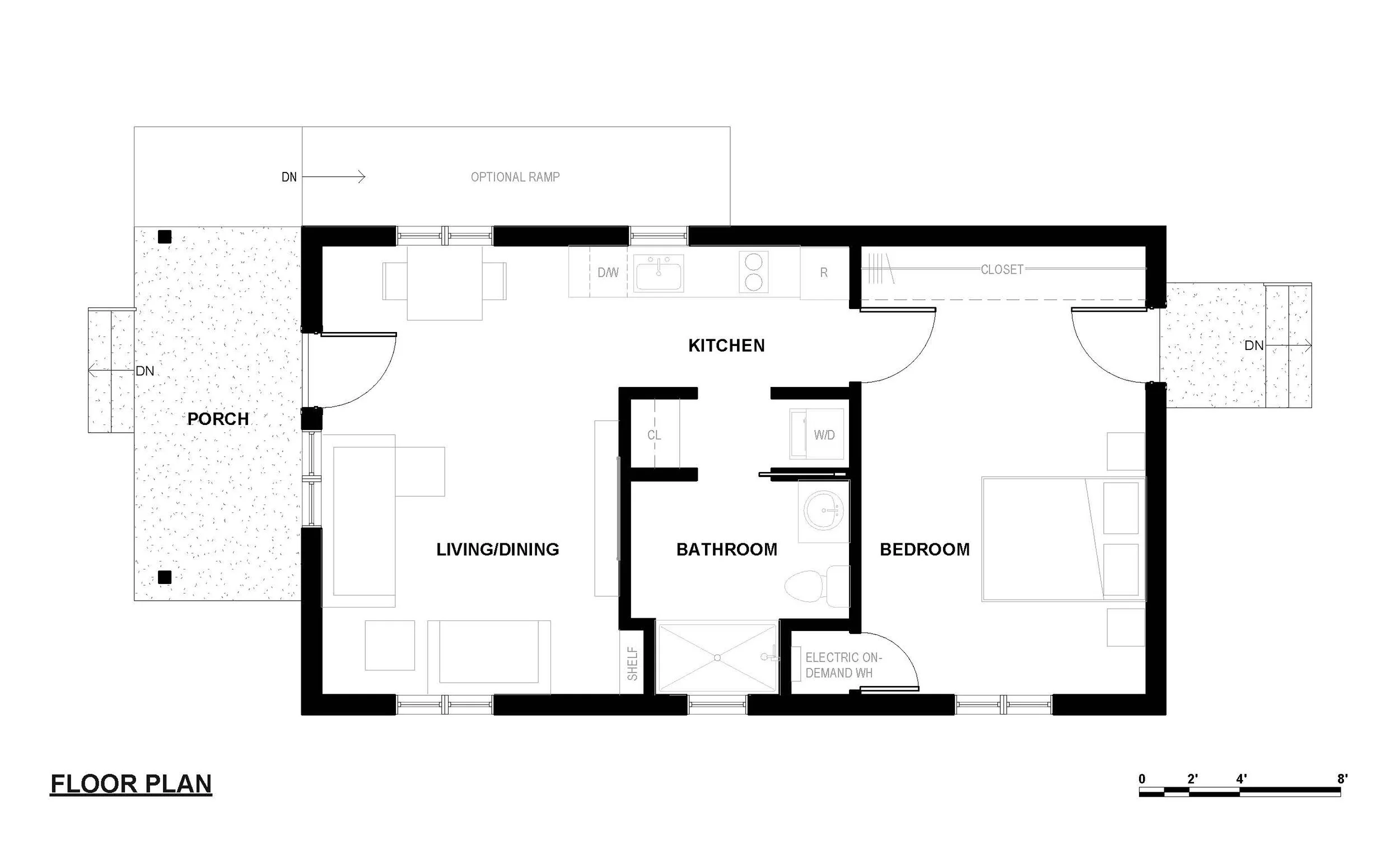
Project Type | ADU Size | 646 SF
Completion | Unbuilt

Architecture | Jan Fillinger, design architect; Cameron Ewing, senior design associate Interior Design | Jan Fillinger Lighting Design | Jan Fillinger


A one-bedroom craftsman style ADU designed with accessibility in mind. The roof is vaulted for an increased feeling of spaciousness in a relatively small footprint. The main entry is shaded by an inviting front porch. A stacking washer and dryer, a compact dishwasher, and on-demand electric water heater complete all the necessary modern amenities. This small but beautiful house features an optional ramp as well as an accessible bathroom to accommodate people of all abilities.


Featured Work